التصاميم الهندسة

الان يمكن طلب تصميمك من ضمن عدد كبير من التصاميم

تصميم مودرن لفيلا سكنية مع شقق بمدخل خاص باطلالات خرافية وقابلية للتنفيذ على أرض مساحتها 20 في 30 متر مسطح و شارعين
نوع التصميم : فيلا سكنية
سعر التصميم

1500 ريال سعودي

أطوال الأرض (عرض)

30 متر

أطوال الأرض (طول)

20 متر

مساحة الأرض

600 متر مربع

عدد الأدوار

2

عدد غرف النوم

9

عدد دورات المياه

9

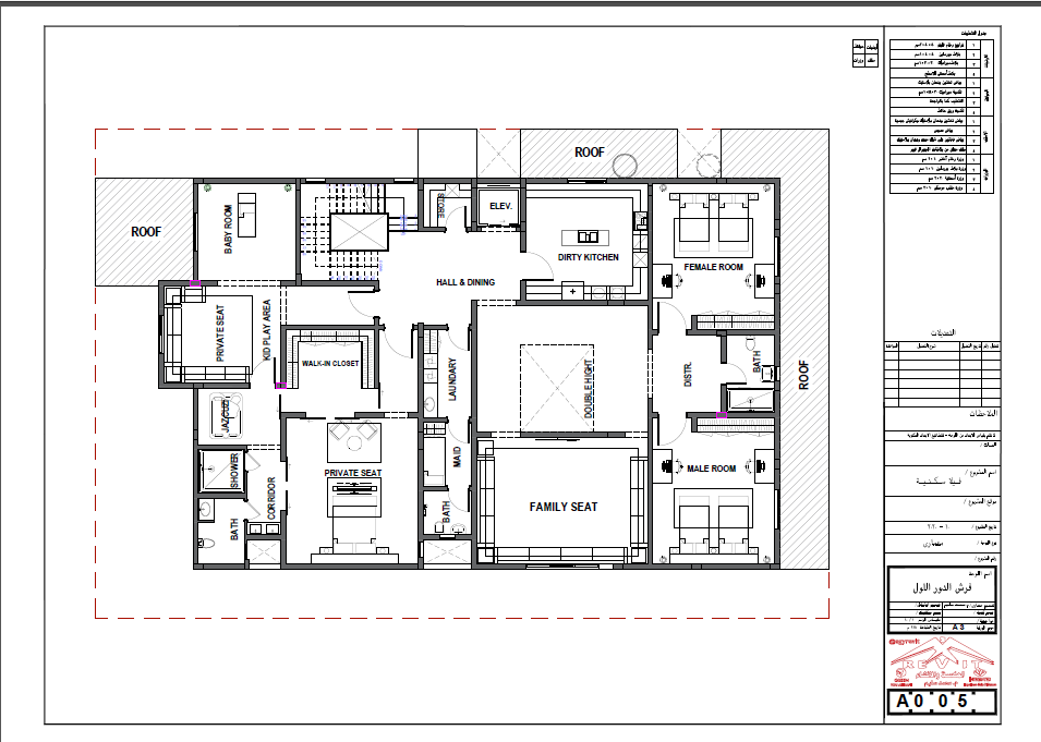
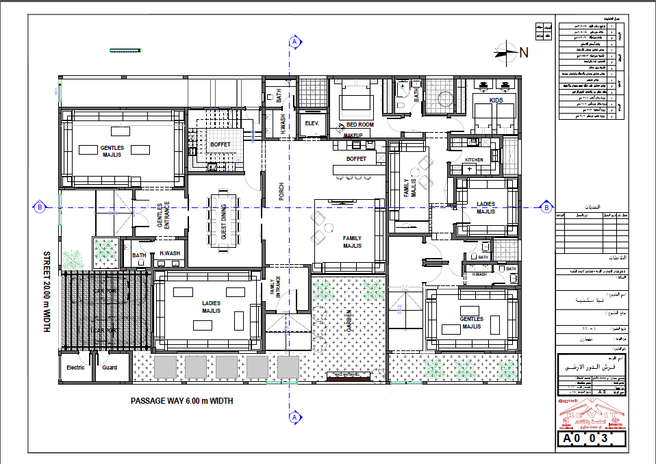
مساحة مسطح الدور الأرضي

414 متر مربع

مساحة مسطح الدور الأول

390 متر مربع

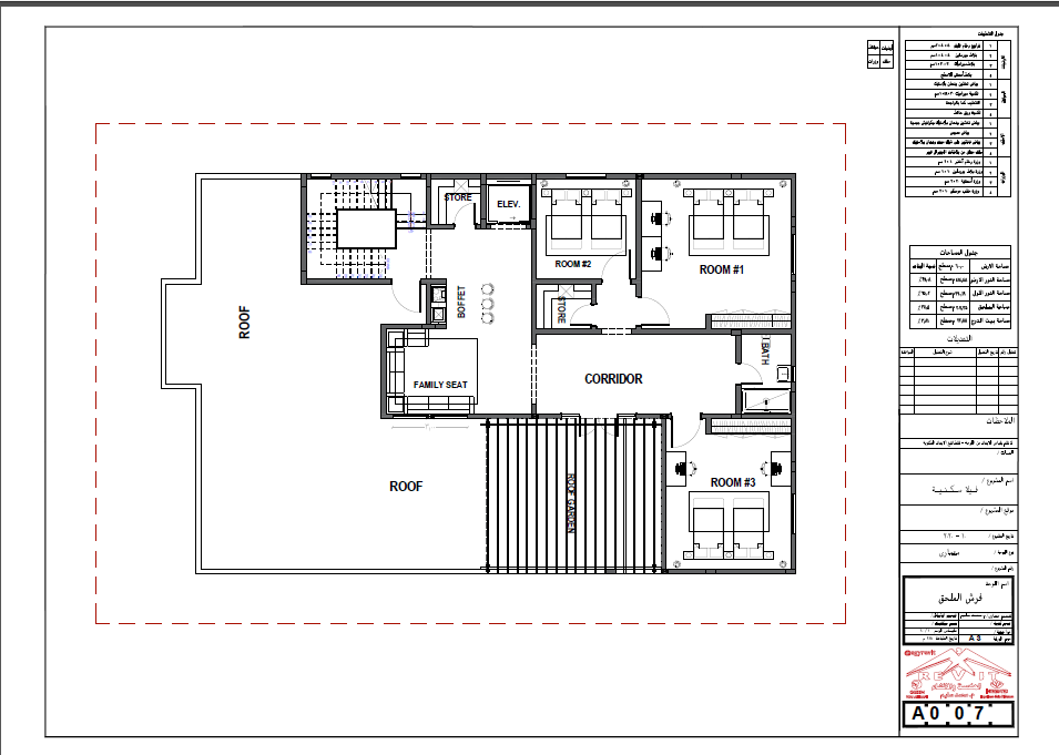
مساحة مسطح الدور الثاني

207 متر مربع

السعر

1500 ريال سعودي

تفاصيل التصميم الهندسي

تصميم مودرن لفيلا  سكنية باطلالات خرافية بها عدد من مجالس الرجال والنساء وجلسه عائلية مشتركة وجاكوزي،يأتي مع التصميم جميع التصميمات المعمارية و الانشائية والالكتروميكانيكية و حصر كميات العظم كما أن التصميم به سماحية للتعديل حسب الحاجه أو حسب أبعاد الأرض بأسعار مميزة جدا و خدمات التصميم الداخلي بأسعار لا تقبل المنافسة وبأعلى جودة ممكنة.

المخططات المتاحة مع التصميم

المخططات الانشائية
المخططات المعمارية
المخططات الكهربائية
المخططات الصحية
مخططات التكييف
الواجهات الخارجية
الحدائق
التصميم الداخلي

التصاميم الهندسية

عن المصمم egyrevit

يختار عملاؤنا ايجي ريفيت لأننا نفهم احتياجاتهم وأهدافهم، نحن نؤمن بالتصميم المتكامل حيث يتم التعامل مع الجوانب الفنية والوظيفية بالتوازي مع التصميم والمناظير الجمالية ، مع مراعاة المستخدم دائمًا. ايجي ريفيت لديها مصممين محترفين - بعضهم معتمد عالميًا - في العمارة الخارجية والداخلية و تصميم الانظمة بكافة انواعها والتصميم الصناعي والبنية التحتية. نسعى كمكتب رائد في مجال التصميم المعماري و الانشاءات المتميزة حسب المعايير المحلية والدولية لتحقيق متطلبات عملائنا، لذا لا نتعب ولا نمل من السعي وراء التميز لما يحقق قيمة مضافة لهم ويعزز استخدامات المنشآت التي نصممها وننفذها. تقدم مشروعات "ايجي ريفيت" مفهومًا جديدًا للاستخدامات في المشاريع التنموية المتكاملة التي تجمع بين المباني السكنية والإدارية والتجارية وكافة المنشآت الخدمية في مكان واحد لمساعدة المستخدم على الاستمتاع بحياة أكثر راحة. هدفنا الأساسي هو التميز و تميز العميل وحصولة على خدمة مميزة يعتبر قمة نجاحنا.

طلب التصميم الهندسي

يمكنك طلب التصميم وسوف نقوم بالتواصل معاك لاي استفسارات , شكرا لك .