التصاميم الهندسة

الان يمكن طلب تصميمك من ضمن عدد كبير من التصاميم

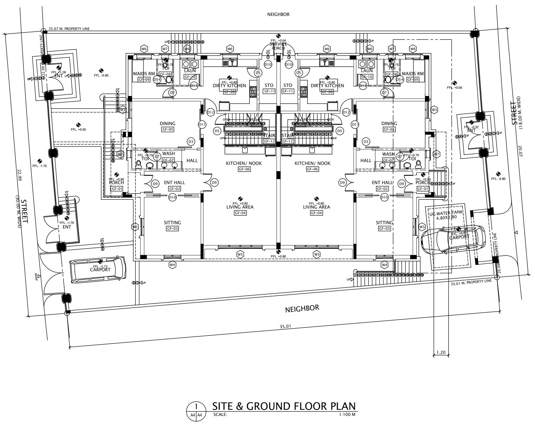
تصميم كلاسيكي عريق ومميز لفيلتين متلاصقتين على شارعين مختلفين في المنسوب على ارض عرضها 25 متر في طول 35 متر و شارعين متقابلين بمناسيب مختلفة
نوع التصميم : فيلا سكنية
سعر التصميم

1000 ريال سعودي

أطوال الأرض (عرض)

25 متر

أطوال الأرض (طول)

35 متر

مساحة الأرض

870 متر مربع

عدد الأدوار

4

عدد غرف النوم

12

عدد دورات المياه

18

مساحة مسطح الدور الأرضي

600 متر مربع

مساحة مسطح الدور الأول

600 متر مربع

مساحة مسطح الدور الثاني

250 متر مربع

السعر

1000 ريال سعودي

تفاصيل التصميم الهندسي

تصميم فيلتين متلاصقتين على شارعين متقابلين مختلفين في المنسوب اختلاف كبير يصل الى 2 متر علي الطراز الكلاسيكي المميز مع اللاند سكيب كل فيلا بها مسح في القبو ومجلسي رجال ونساء وجلسه عائلية مشتركة بالاضافة الى صالات الطعام الخاصة بالضيوف و العائلة والمطبخ والخادمة والسائق مع توزيع مميز جدا لغرف النوم بالادوار العلوية ويتميز التصميم كباقي تصميمات ايجي ريفيت بجمال الواجهات واستغلال المساحات و فصل الخصوصية و عملية الاستخدام ،يأتي مع التصميم جميع التصميمات المعمارية و الانشائية كما أن التصميم به سماحية للتعديل حسب الحاجه أو حسب أبعاد الأرض بأسعار مميزة جدا و خدمات التصميم الداخلي بأسعار لا تقبل المنافسة وبأعلى جودة ممكنة.

المخططات المتاحة مع التصميم

المخططات الانشائية
المخططات المعمارية
المخططات الكهربائية
المخططات الصحية
مخططات التكييف
الواجهات الخارجية
الحدائق
التصميم الداخلي

التصاميم الهندسية

عن المصمم egyrevit

يختار عملاؤنا ايجي ريفيت لأننا نفهم احتياجاتهم وأهدافهم، نحن نؤمن بالتصميم المتكامل حيث يتم التعامل مع الجوانب الفنية والوظيفية بالتوازي مع التصميم والمناظير الجمالية ، مع مراعاة المستخدم دائمًا. ايجي ريفيت لديها مصممين محترفين - بعضهم معتمد عالميًا - في العمارة الخارجية والداخلية و تصميم الانظمة بكافة انواعها والتصميم الصناعي والبنية التحتية. نسعى كمكتب رائد في مجال التصميم المعماري و الانشاءات المتميزة حسب المعايير المحلية والدولية لتحقيق متطلبات عملائنا، لذا لا نتعب ولا نمل من السعي وراء التميز لما يحقق قيمة مضافة لهم ويعزز استخدامات المنشآت التي نصممها وننفذها. تقدم مشروعات "ايجي ريفيت" مفهومًا جديدًا للاستخدامات في المشاريع التنموية المتكاملة التي تجمع بين المباني السكنية والإدارية والتجارية وكافة المنشآت الخدمية في مكان واحد لمساعدة المستخدم على الاستمتاع بحياة أكثر راحة. هدفنا الأساسي هو التميز و تميز العميل وحصولة على خدمة مميزة يعتبر قمة نجاحنا.

فيديو التصميم الهندسي

طلب التصميم الهندسي

يمكنك طلب التصميم وسوف نقوم بالتواصل معاك لاي استفسارات , شكرا لك .