التصاميم الهندسة

الان يمكن طلب تصميمك من ضمن عدد كبير من التصاميم

تصميم مودرن لعمارة سكنية مميزة جدا تتكون من فيلا في الدور الأرضي و شقتين في كل دور متكرر على ارض مساحتها 20 في 37 متر مسطح و شارع واحد
نوع التصميم : فيلا سكنية
سعر التصميم

1000 ريال سعودي

أطوال الأرض (عرض)

20 متر

أطوال الأرض (طول)

37 متر

مساحة الأرض

740 متر مربع

عدد الأدوار

3

عدد غرف النوم

20

عدد دورات المياه

20

مساحة مسطح الدور الأرضي

530 متر مربع

مساحة مسطح الدور الأول

530 متر مربع

مساحة مسطح الدور الثاني

530 متر مربع

السعر

1000 ريال سعودي

تفاصيل التصميم الهندسي

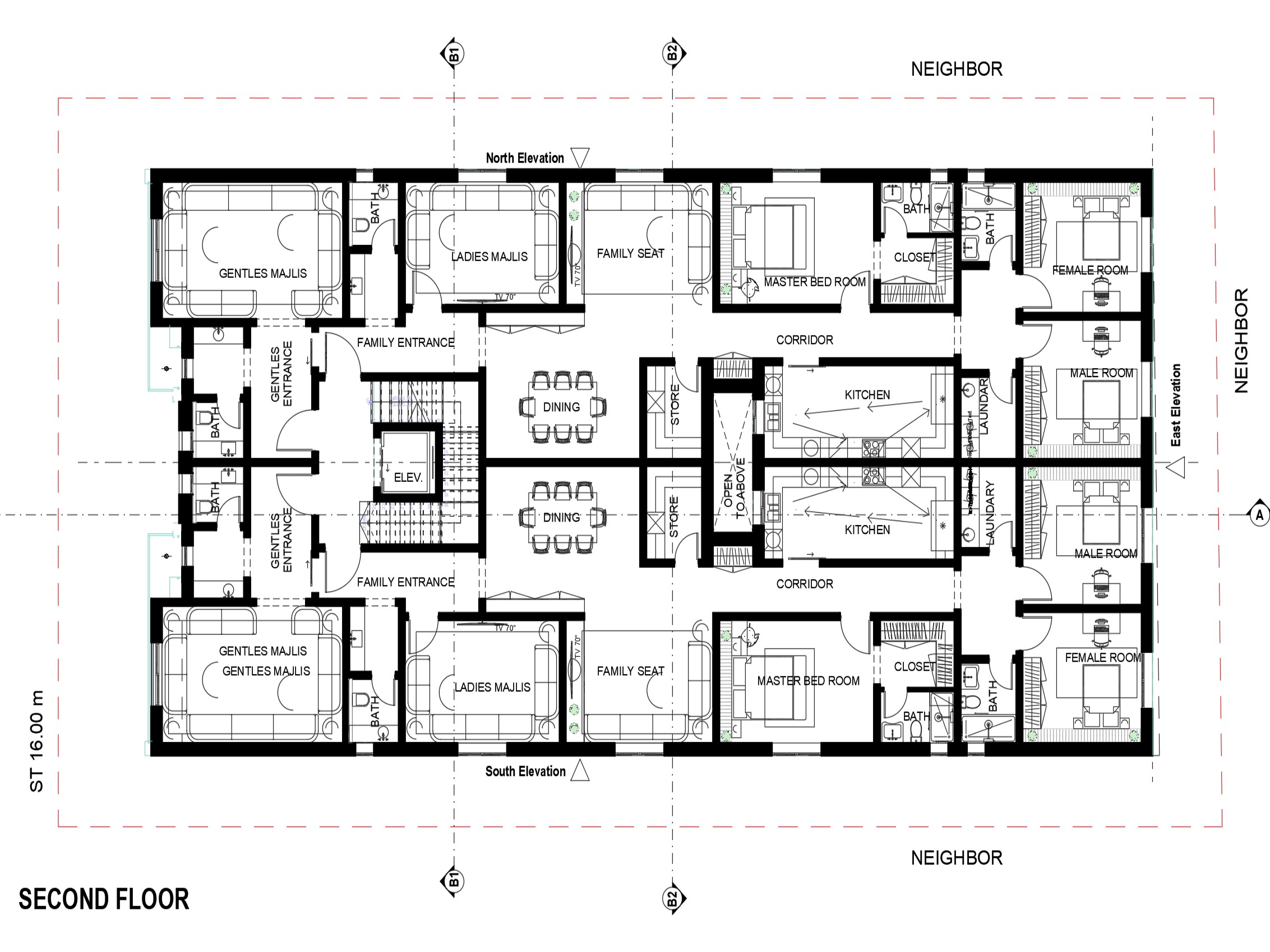
أحد تصاميم ايجي ريفيت المميزة التي تتميز بدقة التصميم و واستغلال المساحات و مراعاة الظروف البيئية و الاقتصادية لعمارة سكنية فيلا في الدور الأرضي و شقتين متعاكستين في كل دور متكرر  على أرض مساحتها 740 متر مربع يتميز التصميم بروعة تصميم الفيلا من الداخل وفصل الاستخدامات والمداخل وتوزيع المساحات حيث تتكون في الدور الأرضي من مدخل خاص للشقق العلوية مع مصعد للشقق والفيلا بها مجلس رجال و طعام رجال و مجلس نساء وصالة معيشة مطلة على الحديقة الخارجية والمطبخ و المستودع وخادمة وغسيل و غرفة نوم ماستر مطلة على الحديقة مع ملابس و حمام وغرفة نوم للبنات مع حمام خاص و غرفتين نوم للاولاد مع حمام مشترك مع مراعاة الاطلالات لكل فراغ وفي الدور الأول علوي شقتين متساويتين  تتكون الشقة الواحدة من مجلس رجال و مجلس نساء و صالة معيشة و غرفة نوم رئيسية مع حمام خاص و غرفتين مع حمام مشترك و غرفة غسيل والمطبخ مع مستودع ،يأتي مع التصميم جميع التصميمات المعمارية و الانشائية والالكتروميكانيكية و حصر كميات العظم كما أن التصميم به سماحية للتعديل حسب الحاجه أو حسب أبعاد الأرض بأسعار مميزة جدا و خدمات التصميم الداخلي بأسعار لا تقبل المنافسة وبأعلى جودة ممكنة.

المخططات المتاحة مع التصميم

المخططات الانشائية
المخططات المعمارية
المخططات الكهربائية
المخططات الصحية
مخططات التكييف
الواجهات الخارجية
الحدائق
التصميم الداخلي

التصاميم الهندسية

عن المصمم egyrevit

يختار عملاؤنا ايجي ريفيت لأننا نفهم احتياجاتهم وأهدافهم، نحن نؤمن بالتصميم المتكامل حيث يتم التعامل مع الجوانب الفنية والوظيفية بالتوازي مع التصميم والمناظير الجمالية ، مع مراعاة المستخدم دائمًا. ايجي ريفيت لديها مصممين محترفين - بعضهم معتمد عالميًا - في العمارة الخارجية والداخلية و تصميم الانظمة بكافة انواعها والتصميم الصناعي والبنية التحتية. نسعى كمكتب رائد في مجال التصميم المعماري و الانشاءات المتميزة حسب المعايير المحلية والدولية لتحقيق متطلبات عملائنا، لذا لا نتعب ولا نمل من السعي وراء التميز لما يحقق قيمة مضافة لهم ويعزز استخدامات المنشآت التي نصممها وننفذها. تقدم مشروعات "ايجي ريفيت" مفهومًا جديدًا للاستخدامات في المشاريع التنموية المتكاملة التي تجمع بين المباني السكنية والإدارية والتجارية وكافة المنشآت الخدمية في مكان واحد لمساعدة المستخدم على الاستمتاع بحياة أكثر راحة. هدفنا الأساسي هو التميز و تميز العميل وحصولة على خدمة مميزة يعتبر قمة نجاحنا.

فيديو التصميم الهندسي

طلب التصميم الهندسي

يمكنك طلب التصميم وسوف نقوم بالتواصل معاك لاي استفسارات , شكرا لك .