التصاميم الهندسة

الان يمكن طلب تصميمك من ضمن عدد كبير من التصاميم

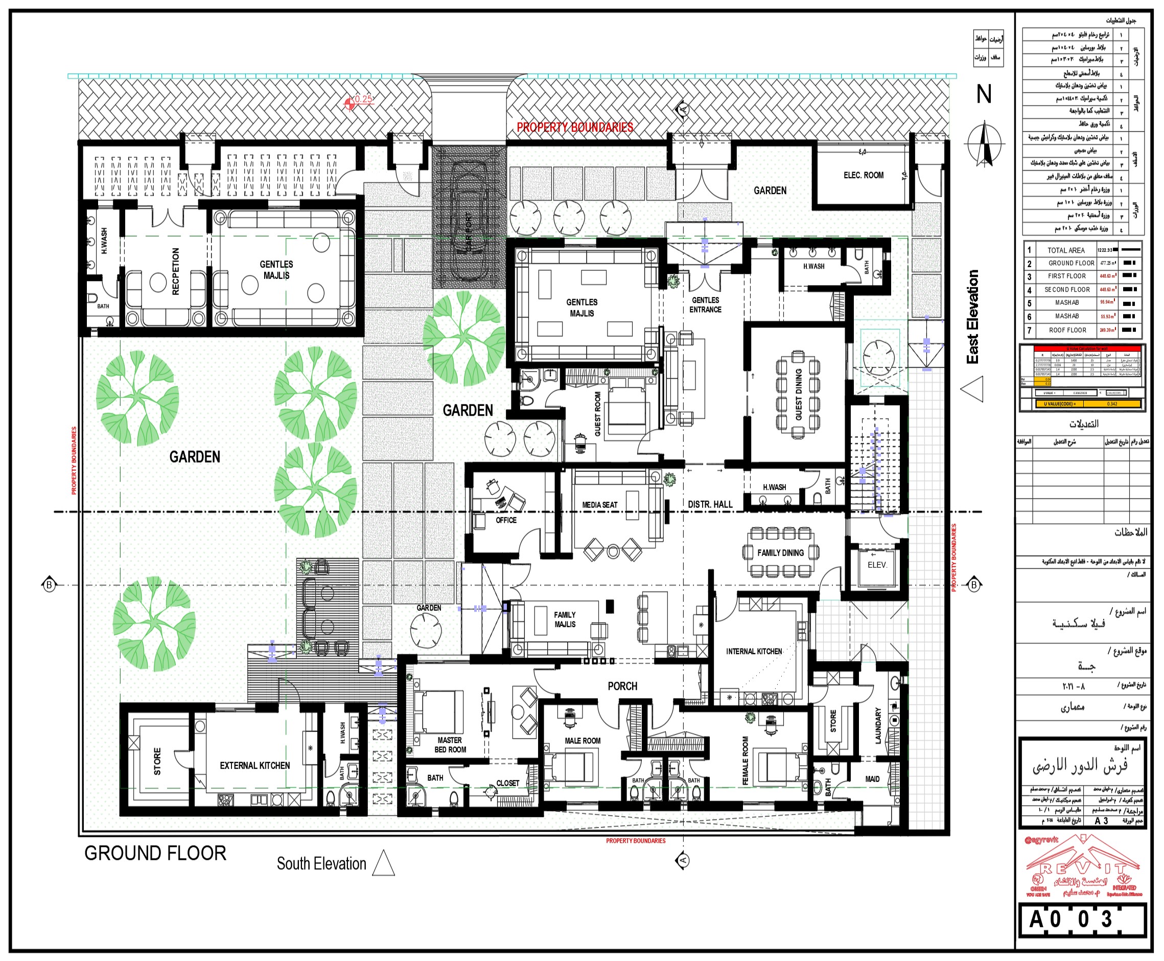
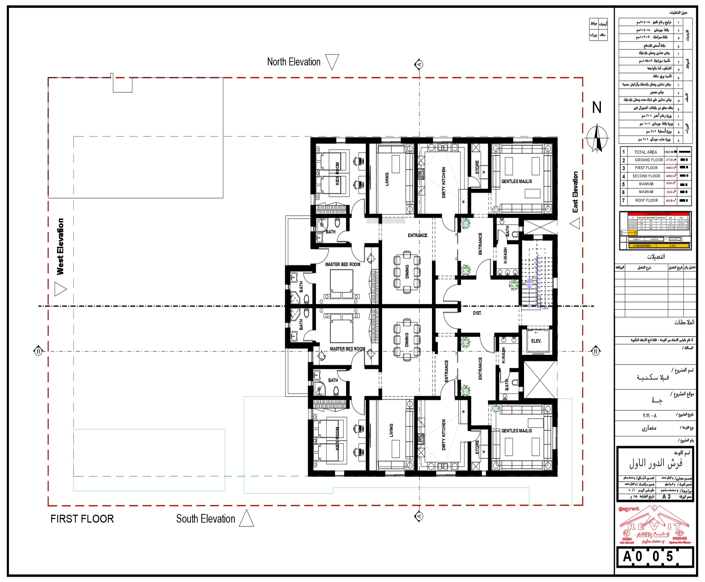
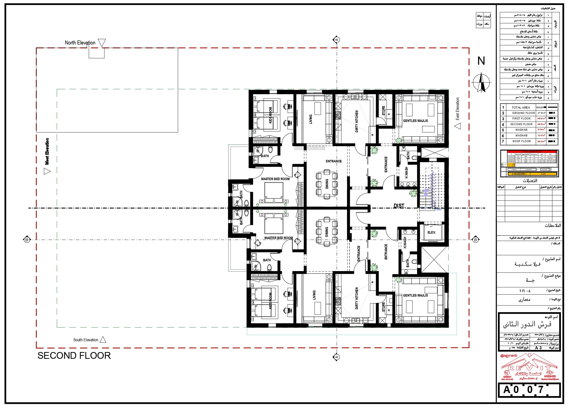
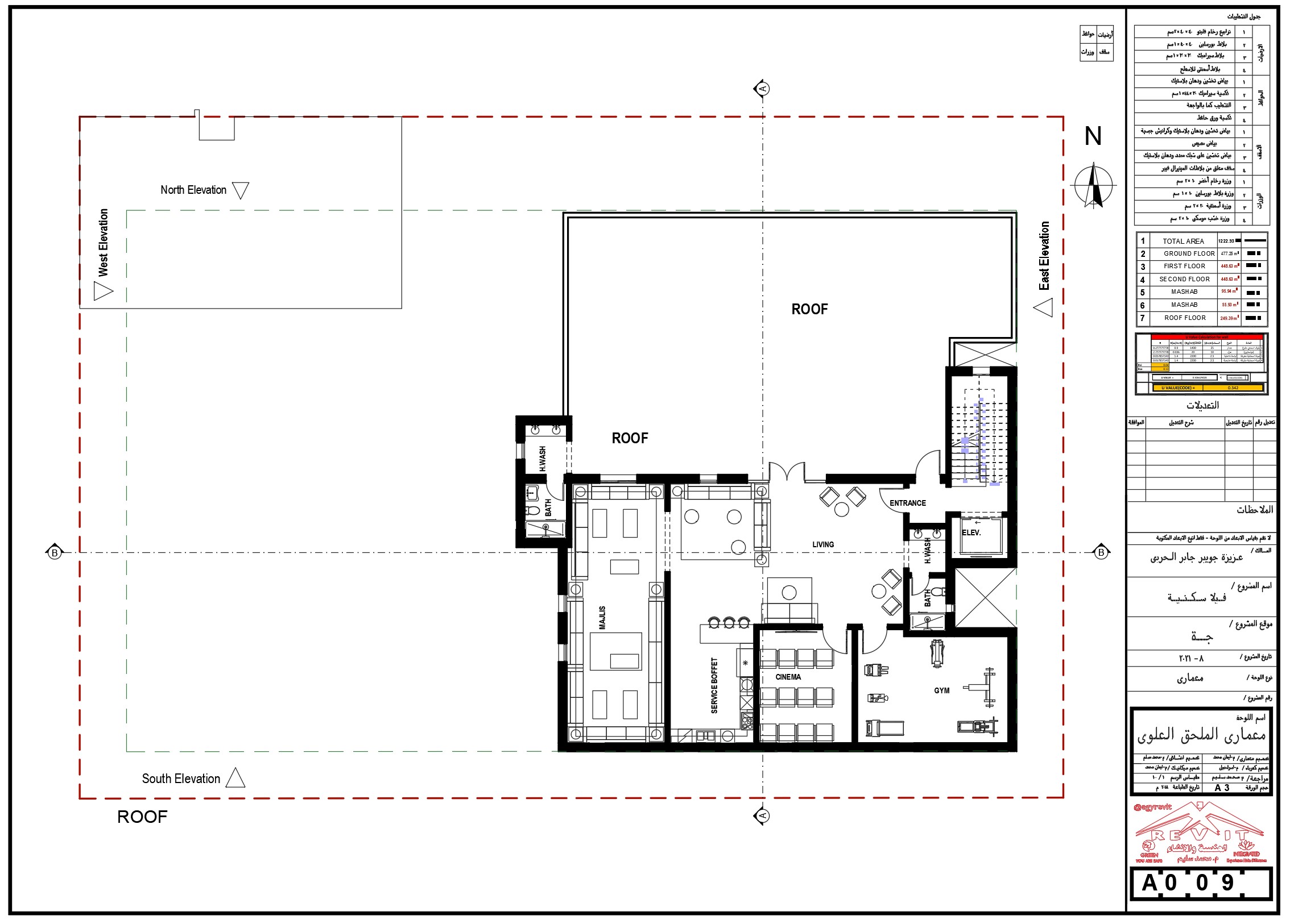
تصميم كلاسيكي رائع لمبنى سكنى فيلا في الأرضي و شقق في المتكرر ثلاث أدوار و ملحق على ارض عرضها 29 متر في طول 42 متر وشارع واحد
نوع التصميم : فيلا سكنية
سعر التصميم

2000 ريال سعودي

أطوال الأرض (عرض)

29 متر

أطوال الأرض (طول)

42 متر

مساحة الأرض

1223 متر مربع

عدد الأدوار

4

عدد غرف النوم

12

عدد دورات المياه

22

مساحة مسطح الدور الأرضي

520 متر مربع

مساحة مسطح الدور الأول

450 متر مربع

مساحة مسطح الدور الثاني

250 متر مربع

السعر

2000 ريال سعودي

تفاصيل التصميم الهندسي

تصميم مبنى سكني علي الطراز الكلاسيكي المميز مع اللاند سكيب المفتوح الدور الأرضي عباره عن فيلا متكاملة بها ملحق خارجي كبير و مجلسي رجال ونساء و طعام ضيوف و نوم ضيوف وجلسه عائلية و طعام عائلي و مكتب بالاضافة الى المطبخ والمطبخ المفتوح في الصالة وأيضا المطبخ الخارجي والخادمة والغسيل بالاضافة الى غرفة نوم رئيسية مع ملابس و حمام و غرفتين مع حمام مشترك و مدخل خاص و مصعد للشقق الجانبية أما في الدور الاول علوي (والمتكرر) فيأتي بتصميم مميز جدا بشقتين كل شقة تتكون من مجلس رجال مع حمام ومغاسل خاصين به و صالة عائلية و صالة طعام مفتوحين في بعضهم البعض و مطبخ واسع و غرفة نوم رئيسية مع حمام خاص و غرفة نوم للأولاد بحمام مشترك مع الصاله أما الملحق العلوي فيأتي بتصميم متميز كعادته بصالة جيم كبيره و غرفة سينما واسعة و مجلس استقبال كبير جدا و صالة عائلية مع المطبخ المفتوح، ويتميز التصميم كباقي تصميمات ايجي ريفيت باستغلال المساحات و فصل الخصوصية و عملية الاستخدام ومراعاة الظروف البيئية والاجتماعية و التقاليد العامة للمجتمع السعودي في حفظ الخصوصية ،يأتي مع التصميم جميع التصميمات المعمارية و الانشائية والكهربائيةو حصر كميات العظم كما أن التصميم به سماحية للتعديل حسب الحاجه أو حسب أبعاد الأرض بأسعار مميزة جدا و خدمات التصميم الداخلي بأسعار لا تقبل المنافسة وبأعلى جودة ممكنة.

المخططات المتاحة مع التصميم

المخططات الانشائية
المخططات المعمارية
المخططات الكهربائية
المخططات الصحية
مخططات التكييف
الواجهات الخارجية
الحدائق
التصميم الداخلي

التصاميم الهندسية

عن المصمم egyrevit

يختار عملاؤنا ايجي ريفيت لأننا نفهم احتياجاتهم وأهدافهم، نحن نؤمن بالتصميم المتكامل حيث يتم التعامل مع الجوانب الفنية والوظيفية بالتوازي مع التصميم والمناظير الجمالية ، مع مراعاة المستخدم دائمًا. ايجي ريفيت لديها مصممين محترفين - بعضهم معتمد عالميًا - في العمارة الخارجية والداخلية و تصميم الانظمة بكافة انواعها والتصميم الصناعي والبنية التحتية. نسعى كمكتب رائد في مجال التصميم المعماري و الانشاءات المتميزة حسب المعايير المحلية والدولية لتحقيق متطلبات عملائنا، لذا لا نتعب ولا نمل من السعي وراء التميز لما يحقق قيمة مضافة لهم ويعزز استخدامات المنشآت التي نصممها وننفذها. تقدم مشروعات "ايجي ريفيت" مفهومًا جديدًا للاستخدامات في المشاريع التنموية المتكاملة التي تجمع بين المباني السكنية والإدارية والتجارية وكافة المنشآت الخدمية في مكان واحد لمساعدة المستخدم على الاستمتاع بحياة أكثر راحة. هدفنا الأساسي هو التميز و تميز العميل وحصولة على خدمة مميزة يعتبر قمة نجاحنا.

طلب التصميم الهندسي

يمكنك طلب التصميم وسوف نقوم بالتواصل معاك لاي استفسارات , شكرا لك .