التصاميم الهندسة

الان يمكن طلب تصميمك من ضمن عدد كبير من التصاميم

تصميم ناعم و جميل لفيلا مودرن دورين وملحق على أرض مساحتها 20 متر في 21 متر و شارع واحد
نوع التصميم : فيلا سكنية
سعر التصميم

1000 ريال سعودي

أطوال الأرض (عرض)

20 متر

أطوال الأرض (طول)

21 متر

مساحة الأرض

420 متر مربع

عدد الأدوار

3

عدد غرف النوم

6

عدد دورات المياه

7

مساحة مسطح الدور الأرضي

230 متر مربع

مساحة مسطح الدور الأول

200 متر مربع

مساحة مسطح الدور الثاني

60 متر مربع

السعر

1000 ريال سعودي

تفاصيل التصميم الهندسي

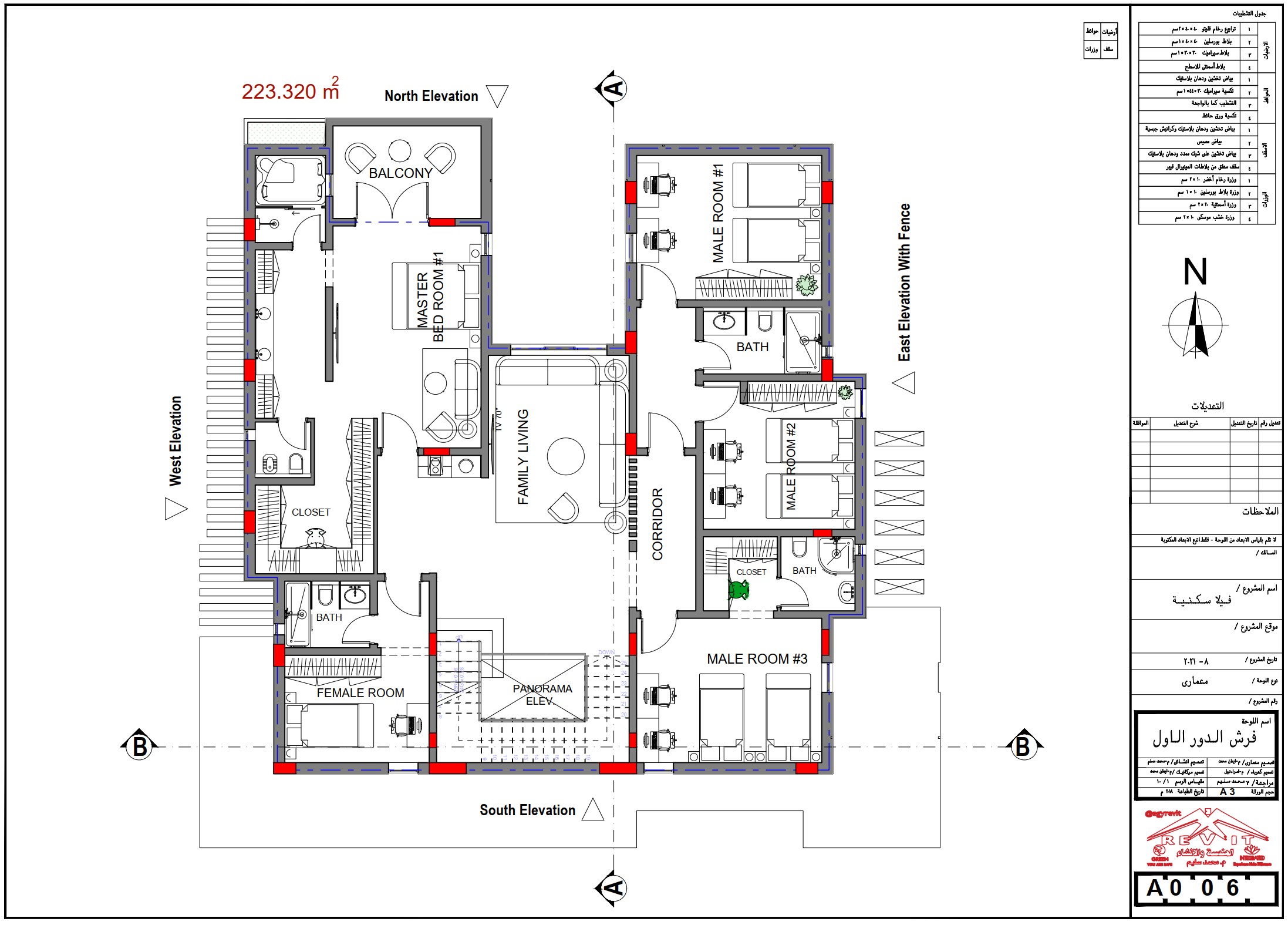
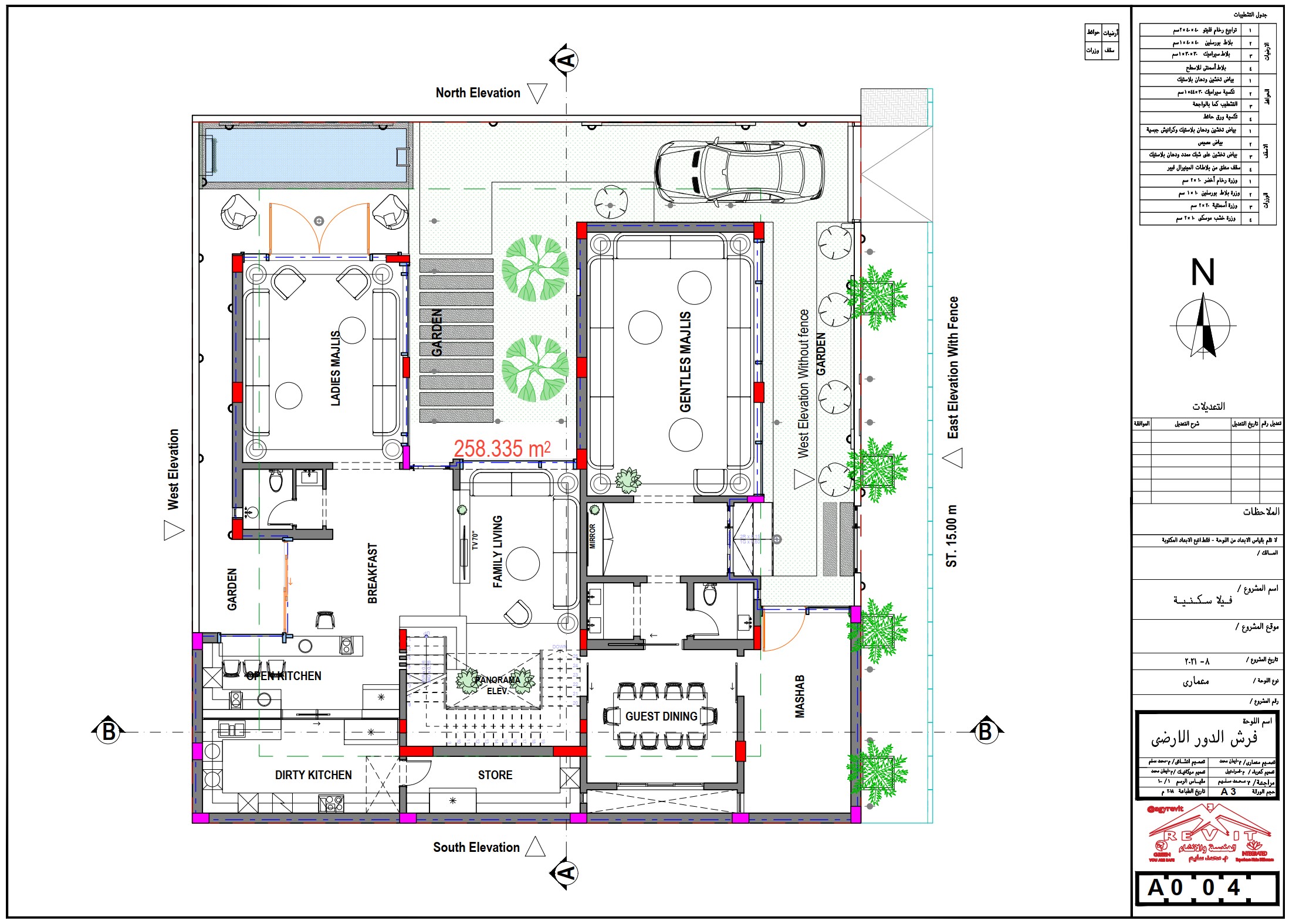
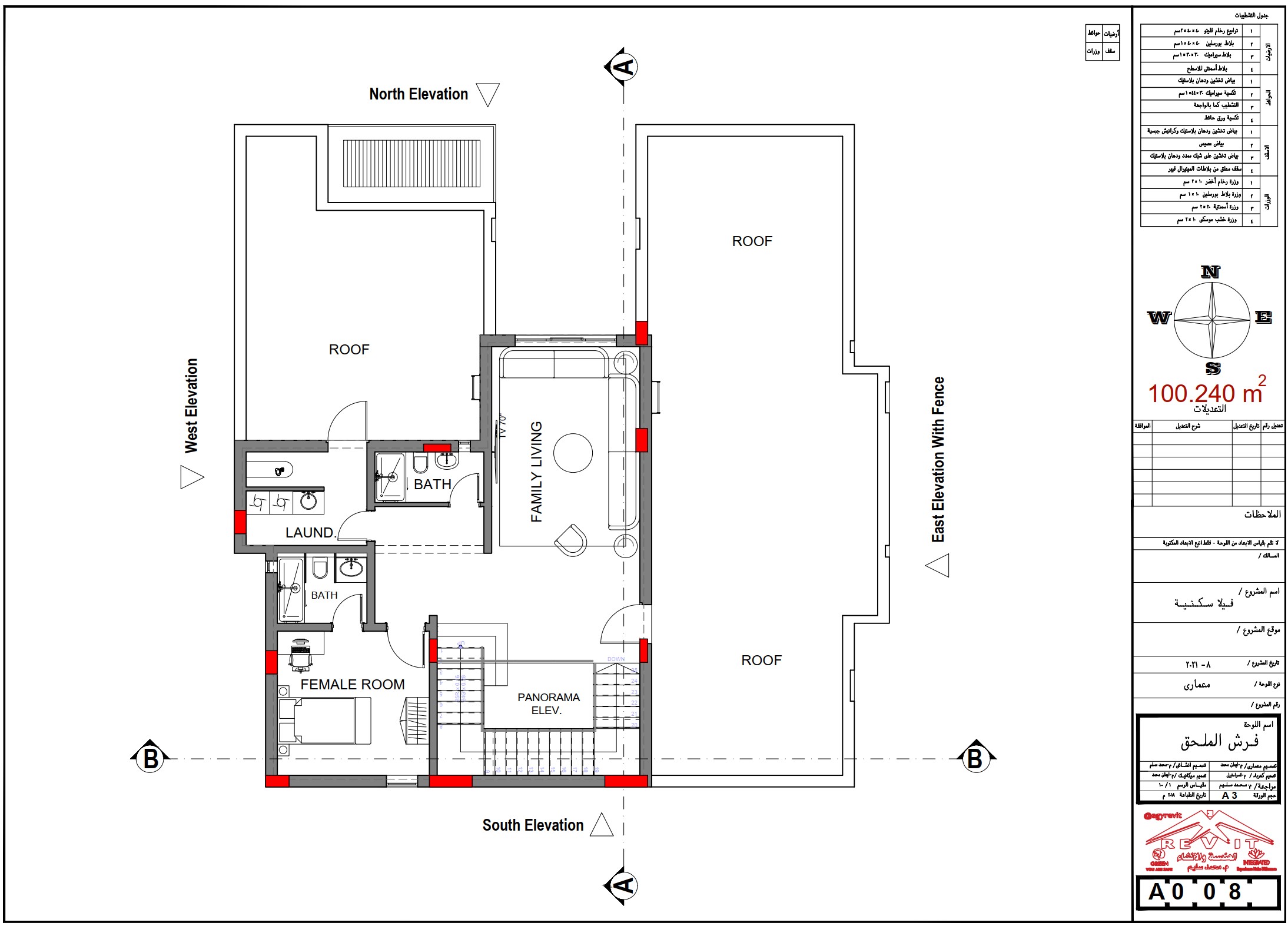
أحد تصاميم ايجي ريفيت المميزة لفيلا سكنية دورين و ملحق على أرض مساحتها 420 متر مربع يتميز التصميم بجمال الواجهات واللاند سكيب والحدائق و توزيع مثالي للمساحات الداخلية بالاضافة الى فصل الاستخدامات وتوزيع المساحات حيث تتكون في الدور الأرضي من مجلس رجال و مجلس نساء وطعام و مشب وصالة معيشة مفتوحة على الدرج مطلة على الحديقة الخارجية و المطبخ المفتوح على الصالة و المغلق للقلي و المستودع كل هذا مع مسبح في الحديقة الخارجية و جلسة عليه باطلالات مميزة من كافة الفراغات  أما في الدور الأول علوي خمس غرف نومغرفتين منفصلتين بحمام خاص مشترك لهما و غرفة النوم الرئيسية التي تتميز بحمام واسع به جاكوزي و غرفة ملابس عملية و بلكونه و جلسة صغيرة و الغرفتين الاخريتين بهما حمام خاص لكل غرفة بالاضافة الى بوفيه خدمة والصالة العائلية أما في الملحق فيتكون من الصالة العائلية و غرفة و حمام يخدمهما بالاضافة الى غرفة الغسيل وبها مساحه للكي ،يأتي مع التصميم جميع التصميمات المعمارية و الانشائية والالكتروميكانيكية و حصر كميات العظم كما أن التصميم به سماحية للتعديل حسب الحاجه أو حسب أبعاد الأرض بأسعار مميزة جدا و خدمات التصميم الداخلي بأسعار لا تقبل المنافسة وبأعلى جودة ممكنة.

المخططات المتاحة مع التصميم

المخططات الانشائية
المخططات المعمارية
المخططات الكهربائية
المخططات الصحية
مخططات التكييف
الواجهات الخارجية
الحدائق
التصميم الداخلي

التصاميم الهندسية

عن المصمم egyrevit

يختار عملاؤنا ايجي ريفيت لأننا نفهم احتياجاتهم وأهدافهم، نحن نؤمن بالتصميم المتكامل حيث يتم التعامل مع الجوانب الفنية والوظيفية بالتوازي مع التصميم والمناظير الجمالية ، مع مراعاة المستخدم دائمًا. ايجي ريفيت لديها مصممين محترفين - بعضهم معتمد عالميًا - في العمارة الخارجية والداخلية و تصميم الانظمة بكافة انواعها والتصميم الصناعي والبنية التحتية. نسعى كمكتب رائد في مجال التصميم المعماري و الانشاءات المتميزة حسب المعايير المحلية والدولية لتحقيق متطلبات عملائنا، لذا لا نتعب ولا نمل من السعي وراء التميز لما يحقق قيمة مضافة لهم ويعزز استخدامات المنشآت التي نصممها وننفذها. تقدم مشروعات "ايجي ريفيت" مفهومًا جديدًا للاستخدامات في المشاريع التنموية المتكاملة التي تجمع بين المباني السكنية والإدارية والتجارية وكافة المنشآت الخدمية في مكان واحد لمساعدة المستخدم على الاستمتاع بحياة أكثر راحة. هدفنا الأساسي هو التميز و تميز العميل وحصولة على خدمة مميزة يعتبر قمة نجاحنا.

فيديو التصميم الهندسي

طلب التصميم الهندسي

يمكنك طلب التصميم وسوف نقوم بالتواصل معاك لاي استفسارات , شكرا لك .