التصاميم الهندسة

الان يمكن طلب تصميمك من ضمن عدد كبير من التصاميم

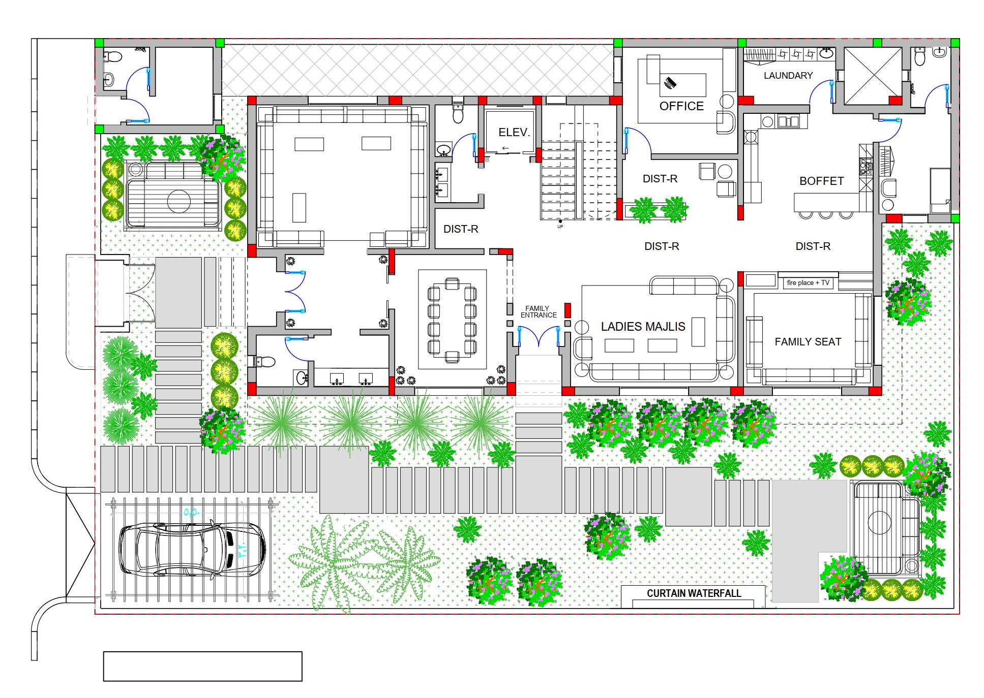
تصميم قصر مصغر بطراز كلاسيكي على أرض مساحتها 20 في 30 متر مسطح و شارع واحد
نوع التصميم : فيلا سكنية
سعر التصميم

1500 ريال سعودي

أطوال الأرض (عرض)

20 متر

أطوال الأرض (طول)

30 متر

مساحة الأرض

600 متر مربع

عدد الأدوار

3

عدد غرف النوم

6

عدد دورات المياه

9

مساحة مسطح الدور الأرضي

258 متر مربع

مساحة مسطح الدور الأول

211 متر مربع

مساحة مسطح الدور الثاني

145 متر مربع

السعر

1500 ريال سعودي

تفاصيل التصميم الهندسي

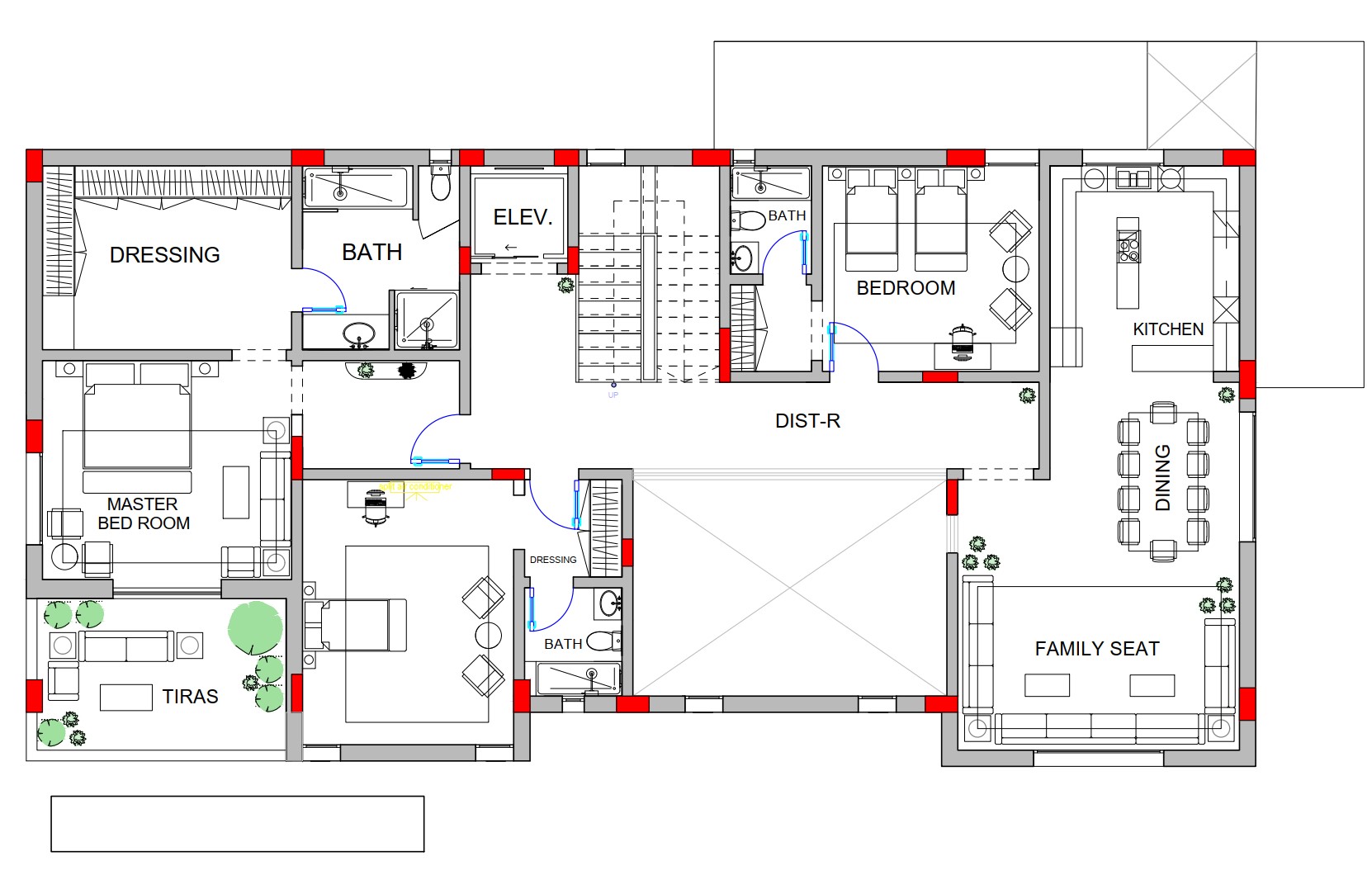
هل فكرت في أن تعيش في قصر! هذا التصميم سيلبي تطلعاتك بأقل تكلفة .. التصميم يأتي على أرض مساحتها 600 متر مسطح (20 في 30) ... وهو تصميم مميز جدا تم توزيع الفراغات بشكل احترافي .. استغلال احترافي للمساحات .. و كافة المخططات احترافية، يتكون الدور الأرضي من مجلس رجال و طعام مشترك و مجلس نساء و صالة عائلية بمشب و مطبخ مفتوح على الصالة خدمة و غرفة الغسيل والخادمةومكتب و مصعد أما الدور الأول علوي فيتكون من المطبخ الرئيسي المفتوح في الصالة وبينهما الطعام و غرفتين نوم مع حمام خاص لكل منهما بالاضافة الى غرفة النوم الرئيسية التي تأتي مع حمام واسع و غرفة ملابس مميزه و تراس باطلالة على الحديقة السفلية والدور الملحق به ثلاث غرف نوم لكل غرفة حمام خاص و بوفيه خدمه يأتي في هذا التصميم دبل هايت أو بهو المدخل (الصالة)

المخططات المتاحة مع التصميم

المخططات الانشائية
المخططات المعمارية
المخططات الكهربائية
المخططات الصحية
مخططات التكييف
الواجهات الخارجية
الحدائق
التصميم الداخلي

التصاميم الهندسية

عن المصمم egyrevit

يختار عملاؤنا ايجي ريفيت لأننا نفهم احتياجاتهم وأهدافهم، نحن نؤمن بالتصميم المتكامل حيث يتم التعامل مع الجوانب الفنية والوظيفية بالتوازي مع التصميم والمناظير الجمالية ، مع مراعاة المستخدم دائمًا. ايجي ريفيت لديها مصممين محترفين - بعضهم معتمد عالميًا - في العمارة الخارجية والداخلية و تصميم الانظمة بكافة انواعها والتصميم الصناعي والبنية التحتية. نسعى كمكتب رائد في مجال التصميم المعماري و الانشاءات المتميزة حسب المعايير المحلية والدولية لتحقيق متطلبات عملائنا، لذا لا نتعب ولا نمل من السعي وراء التميز لما يحقق قيمة مضافة لهم ويعزز استخدامات المنشآت التي نصممها وننفذها. تقدم مشروعات "ايجي ريفيت" مفهومًا جديدًا للاستخدامات في المشاريع التنموية المتكاملة التي تجمع بين المباني السكنية والإدارية والتجارية وكافة المنشآت الخدمية في مكان واحد لمساعدة المستخدم على الاستمتاع بحياة أكثر راحة. هدفنا الأساسي هو التميز و تميز العميل وحصولة على خدمة مميزة يعتبر قمة نجاحنا.

طلب التصميم الهندسي

يمكنك طلب التصميم وسوف نقوم بالتواصل معاك لاي استفسارات , شكرا لك .