التصاميم الهندسة

الان يمكن طلب تصميمك من ضمن عدد كبير من التصاميم

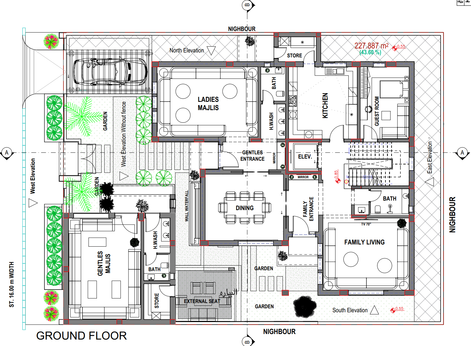
تصميم مودرن مميز لفيلا سكنية تتكون من دورين على ارض مساحتها 20 في 26متر مسطح و شارع واحد
نوع التصميم : فيلا سكنية
سعر التصميم

1000 ريال سعودي

أطوال الأرض (عرض)

20 متر

أطوال الأرض (طول)

26 متر

مساحة الأرض

520 متر مربع

عدد الأدوار

2

عدد غرف النوم

5

عدد دورات المياه

7

مساحة مسطح الدور الأرضي

227 متر مربع

مساحة مسطح الدور الأول

248 متر مربع

مساحة مسطح الدور الثاني

20 متر مربع

السعر

1000 ريال سعودي

تفاصيل التصميم الهندسي

أحد تصاميم ايجي ريفيت الاقتصادية و المميزة لفيلا سكنية دورين فقط والملحق عبارة عن بيت الدرج و بيت المصعد فقط بالاضافة الى حديقة في السطح على أرض مساحتها 520 متر مربع يتميز التصميم بجمال الواجهات بلون مميز واللاند سكيب والحدائق و توزيع مثالي للمساحات الداخلية بالاضافة الى فصل الاستخدامات وتوزيع المساحات حيث تتكون في الدور الأرضي من مجلس رجال و مجلس نساء وطعام مشترك جميع الفراغات لها اطلالات على الحديقة الخارجية و المطبخ و المستودع  ويوجد مصعد وغرفة نوم يمكن استغلالها لكبار السن أو للضيوف  أما في الدور الأول علوي أربع غرف نوم لكل غرفه حمامها الخاص بما فيهم غرفة النوم الرئيسية التي تتميز بحمام واسع و غرفة ملابس عملية و بوفيه خدمة والصالة العائلية و وصالة الطعام أما في الملحق فيأتي بيت الدرج فقط و بيت المصعد ،يأتي مع التصميم جميع التصميمات المعمارية و الانشائية والالكتروميكانيكية و حصر كميات العظم كما أن التصميم به سماحية للتعديل حسب الحاجه أو حسب أبعاد الأرض بأسعار مميزة جدا و خدمات التصميم الداخلي بأسعار لا تقبل المنافسة وبأعلى جودة ممكنة.

المخططات المتاحة مع التصميم

المخططات الانشائية
المخططات المعمارية
المخططات الكهربائية
المخططات الصحية
مخططات التكييف
الواجهات الخارجية
الحدائق
التصميم الداخلي

التصاميم الهندسية

عن المصمم egyrevit

يختار عملاؤنا ايجي ريفيت لأننا نفهم احتياجاتهم وأهدافهم، نحن نؤمن بالتصميم المتكامل حيث يتم التعامل مع الجوانب الفنية والوظيفية بالتوازي مع التصميم والمناظير الجمالية ، مع مراعاة المستخدم دائمًا. ايجي ريفيت لديها مصممين محترفين - بعضهم معتمد عالميًا - في العمارة الخارجية والداخلية و تصميم الانظمة بكافة انواعها والتصميم الصناعي والبنية التحتية. نسعى كمكتب رائد في مجال التصميم المعماري و الانشاءات المتميزة حسب المعايير المحلية والدولية لتحقيق متطلبات عملائنا، لذا لا نتعب ولا نمل من السعي وراء التميز لما يحقق قيمة مضافة لهم ويعزز استخدامات المنشآت التي نصممها وننفذها. تقدم مشروعات "ايجي ريفيت" مفهومًا جديدًا للاستخدامات في المشاريع التنموية المتكاملة التي تجمع بين المباني السكنية والإدارية والتجارية وكافة المنشآت الخدمية في مكان واحد لمساعدة المستخدم على الاستمتاع بحياة أكثر راحة. هدفنا الأساسي هو التميز و تميز العميل وحصولة على خدمة مميزة يعتبر قمة نجاحنا.

طلب التصميم الهندسي

يمكنك طلب التصميم وسوف نقوم بالتواصل معاك لاي استفسارات , شكرا لك .