التصاميم الهندسة

الان يمكن طلب تصميمك من ضمن عدد كبير من التصاميم

تصميم كلاسيكي مميز لمبنى سكني تجاري فيلا سكنية و شقة و محلات دورين و ملحق على أرض مساحتها 607 متر مسطح و شارعين أحدهما تجاري
نوع التصميم : تجاري اداري
سعر التصميم

1500 ريال سعودي

أطوال الأرض (عرض)

25 متر

أطوال الأرض (طول)

25 متر

مساحة الأرض

607 متر مربع

عدد الأدوار

3

عدد غرف النوم

10

عدد دورات المياه

9

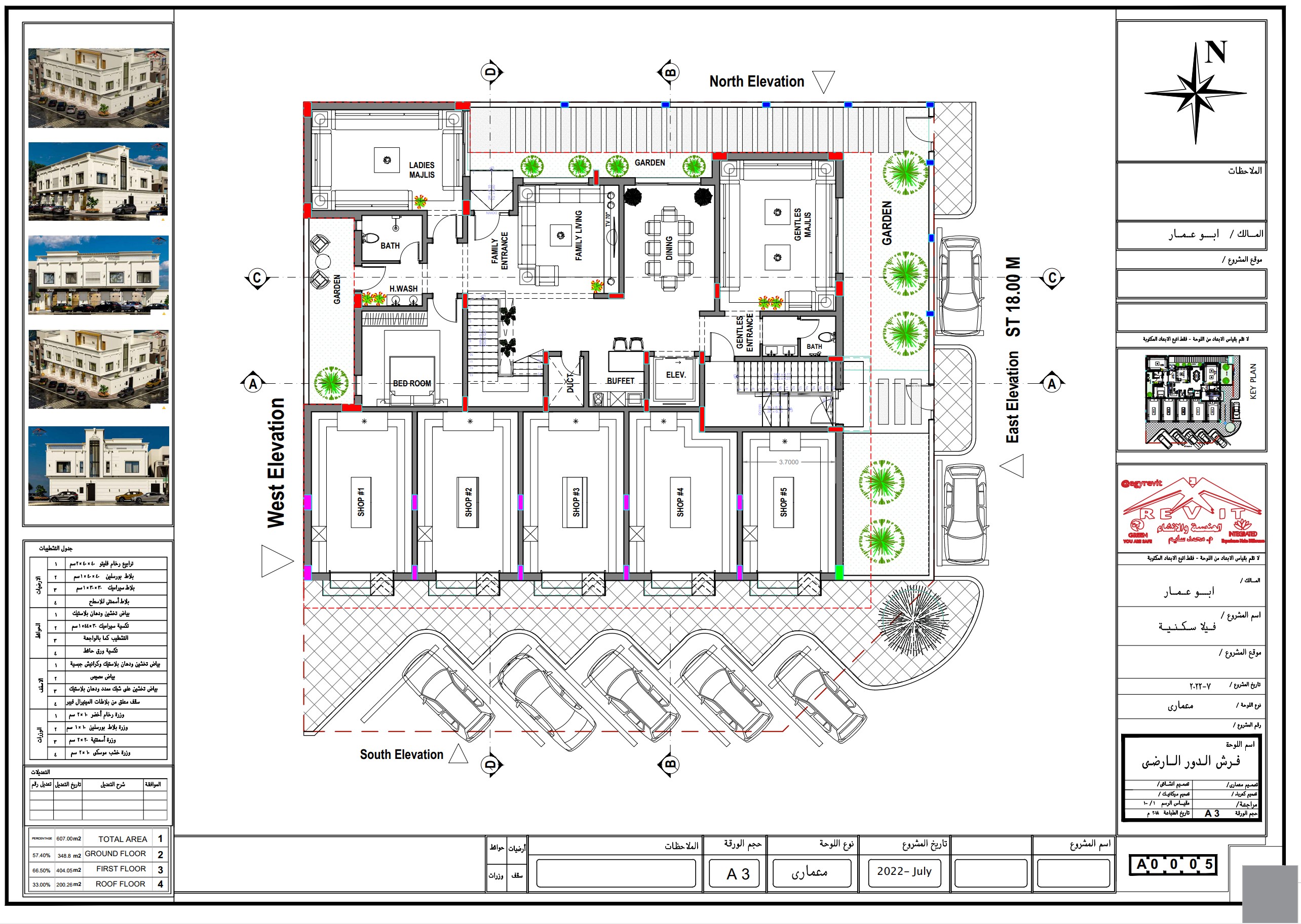
مساحة مسطح الدور الأرضي

349 متر مربع

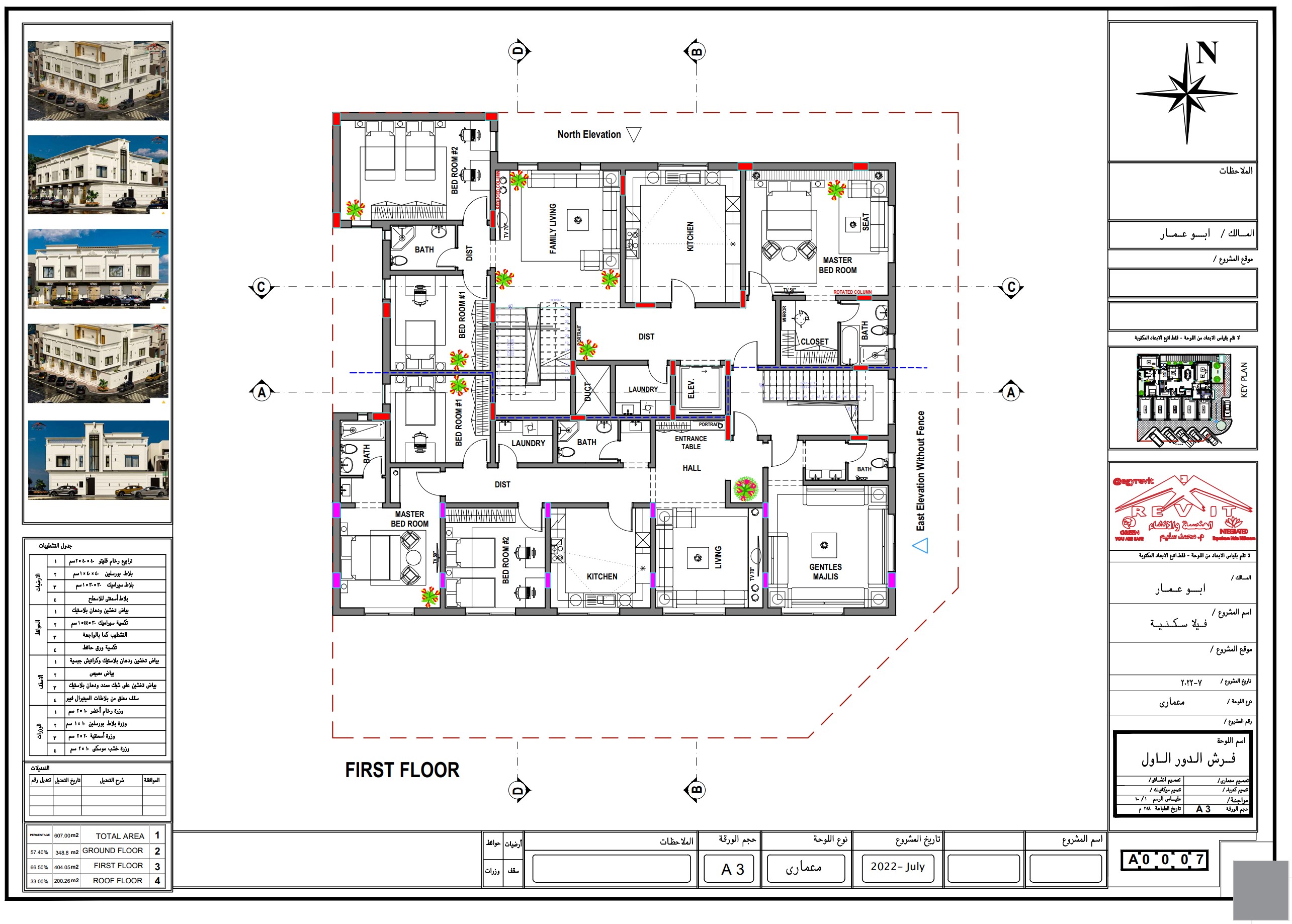
مساحة مسطح الدور الأول

404 متر مربع

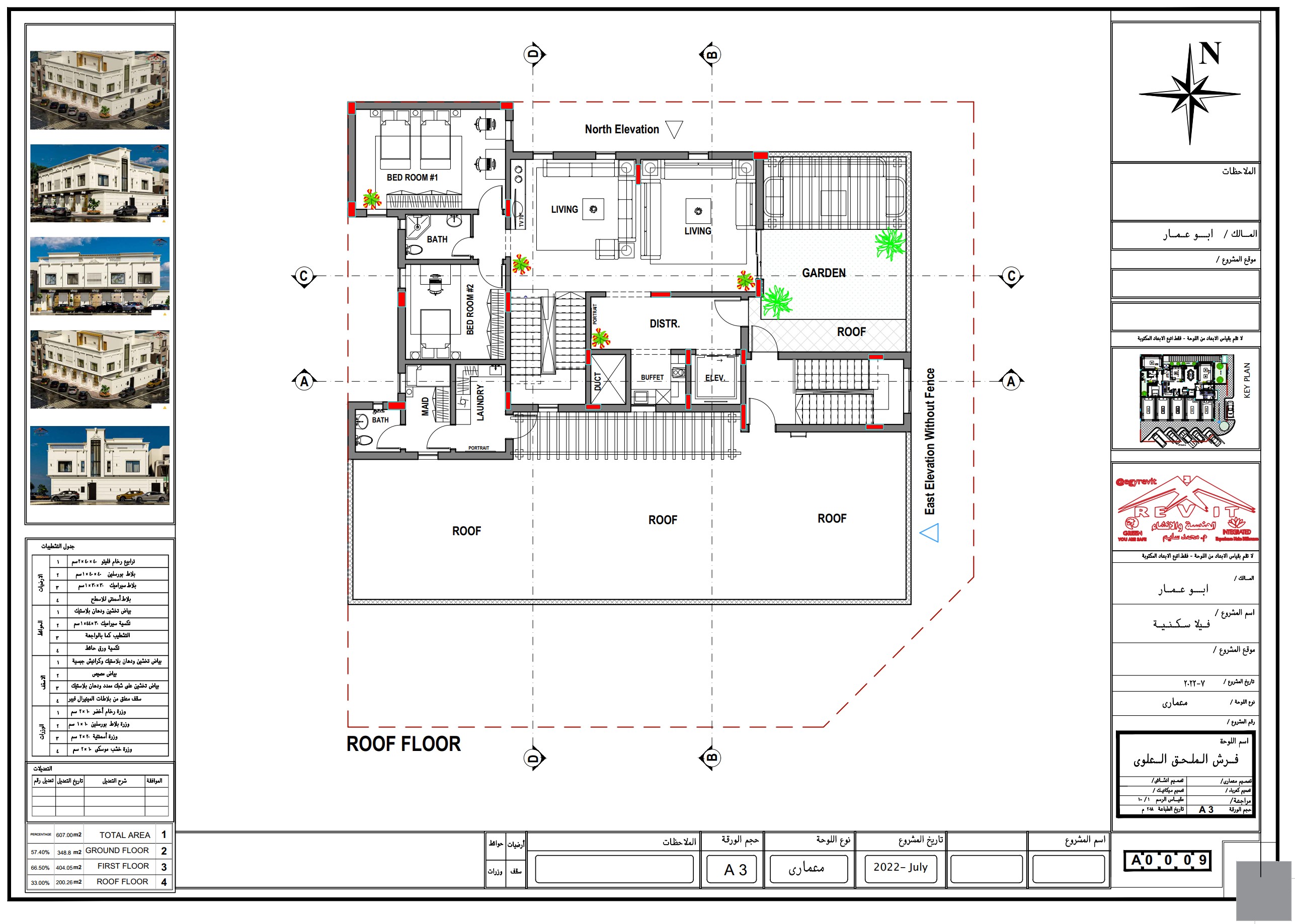
مساحة مسطح الدور الثاني

200 متر مربع

السعر

1500 ريال سعودي

تفاصيل التصميم الهندسي

تصميم فيلا على الطراز الكلاسيكي مع المحلاطت على الشارع التجاري و شقة فوق المحلات .. التصميم يأتي على أرض مساحتها 607متر مسطح (25 في 25 متر) و شطره ... وهو تصميم مميز جدا تم توزيع الفراغات بشكل احترافي والاستفاده من قطعة الأرض أقصى استفاده ممكنه و خلق فرص استفادة واستثمار في فيلا و شقة و أكبر  عدد من المحلات .. يأتي المشروع بمخططات احترافية، يتكون الدور الأرضي للفيلا من مجلس رجال و طعام و مجلس نساء و غرفة نوم مع جميع الخدمات و مطبخ مفتوح على الصالة ويوجد مصعد ومساحات خضراء مميزه في الحوش أما الدور الأول علوي للفيلا فيتكون من المطبخ الرئيسي وصالة عائلية و غرفتين نوم مع حمام مشترك مع غرفة الغسيل تتوسطهم بالاضافة الى غرفة النوم الرئيسية التي تأتي مع حمام خاص و غرفة ملابس والدور الملحق للفيلا به صالتين معيشة مفتوحين في بعض  و غرفتين نوم يتوسطهم حمام مشترك لخدمة الدور الملحق وبالخارج على السطح يوجد حديقة و جلسة خارجية مع غرفة الخادمة وخدماتها؛ أما المحلات الموجود في الدور الأرضي فعباره عن عدد 5 محلات كل محل مساحته حوالي 25 متر مسطح ؛ أما الشقة الموجود فوق المحلات بالدور الأول علوي فتأتي بتصميم مميز جدا يتكون من مجلس رجال و صالة معيشة عائلية و مطبخ رئيسي و غرفة غسيل بالاضافة الى غرفتين نوم للأولاد مع حمام مشترك و غرفة نوم رئيسية مع حمام خاص.. أحد تصاميم ايجي ريفيت المميزة و توزيع مثالي للمساحات والفراغات و ربط الاستخدامات وتلبية متطلبات العميل واحتياجاته رغم ضيق المساحة.

المخططات المتاحة مع التصميم

المخططات الانشائية
المخططات المعمارية
المخططات الكهربائية
المخططات الصحية
مخططات التكييف
الواجهات الخارجية
الحدائق
التصميم الداخلي

التصاميم الهندسية

عن المصمم egyrevit

يختار عملاؤنا ايجي ريفيت لأننا نفهم احتياجاتهم وأهدافهم، نحن نؤمن بالتصميم المتكامل حيث يتم التعامل مع الجوانب الفنية والوظيفية بالتوازي مع التصميم والمناظير الجمالية ، مع مراعاة المستخدم دائمًا. ايجي ريفيت لديها مصممين محترفين - بعضهم معتمد عالميًا - في العمارة الخارجية والداخلية و تصميم الانظمة بكافة انواعها والتصميم الصناعي والبنية التحتية. نسعى كمكتب رائد في مجال التصميم المعماري و الانشاءات المتميزة حسب المعايير المحلية والدولية لتحقيق متطلبات عملائنا، لذا لا نتعب ولا نمل من السعي وراء التميز لما يحقق قيمة مضافة لهم ويعزز استخدامات المنشآت التي نصممها وننفذها. تقدم مشروعات "ايجي ريفيت" مفهومًا جديدًا للاستخدامات في المشاريع التنموية المتكاملة التي تجمع بين المباني السكنية والإدارية والتجارية وكافة المنشآت الخدمية في مكان واحد لمساعدة المستخدم على الاستمتاع بحياة أكثر راحة. هدفنا الأساسي هو التميز و تميز العميل وحصولة على خدمة مميزة يعتبر قمة نجاحنا.

طلب التصميم الهندسي

يمكنك طلب التصميم وسوف نقوم بالتواصل معاك لاي استفسارات , شكرا لك .